Agricultural

Whether you need new agricultural buildings, are proposing a rural diversification project or need an agricultural workers’ dwelling, RCC Town Planning Consultancy will ensure you get the best advice and have the very best chance of attaining the planning permission required.
Even the most simple of proposals to provide new buildings or other improvement works on your farm are subject to the complicated planning regulations. We can take care of all matters for you ensuring the whole process runs smoothly.
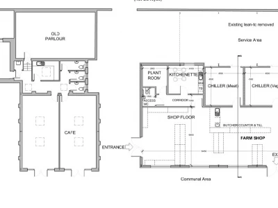
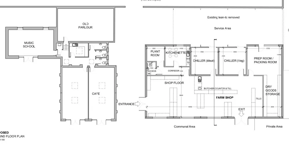
More complicated proposals may include diversification projects, including tourist accommodation, retail/commercial uses and proposals for new agricultural workers dwellings on farms. These types of proposals require much greater specialist input and properly presented proposals will give you the best chance of success.
RCC Town Planning Consultancy is highly successful in obtaining planning permission for a wide range of agricultural proposals including; an additional dwelling on a dairy farm to replace an existing mobile home subject of enforcement proceedings, a large robotic dairy facility within an AONB, successfully obtaining a second dwelling on a beef unit to provide accommodation for the clients son which was essential for the development of the business, permission for the development of improved pig housing facilities at a farm in Hampshire, a farm diversification scheme to create a cafe, creation of tourist accommodation on farms and solar array installations.